• 0032491755234
  • français français
    • English English
    • français français
Porto
  • Portes
    • Portes de garage sectionnelles
    • Portes sectionnelles industrielles
    • Portes à enroulement
    • Power Door
    • Portes Vogue
  • Prix
    • Configurateur portes de garage
    • Prix portes de garage
    • Prix portes sectionnelles industrielles
  • Actualités
  • Galerie photos
    • Galerie photos
    • Showroom
  • Qui sommes-nous?
    • Qui sommes-nous?
    • Des partenaires dans le monde entier
  • Contact
    • Contact
    • 0032491755234
  • Home
  • Portes sectionnelles industrielles

Portes sectionnelles

Portes sectionnelles industrielles

Portes de garage MCA 1
Portes de garage MCA 2
Portes de garage MCA 3

Portes sectionnelles industrielles

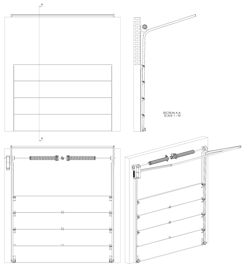
Les portes de garage sectionnelles industrielles sont une solution idéale pour la fermeture des espaces industriels dans des situations spécifiques. Les dimensions personnalisées et l'emploi de composantes spéciales nous permettent d'offrir des solutions techniques variées, adaptées à une utilisation intense.

Les portes de garage sectionnelles industrielles MCA sont caractérisées par: :

  • Une technologie moderne de fabrication pour une intégration dans la façade de l'immeuble
    • Système de coulissage standart
    • Système de coulissage LHF (Low Headroom Front) - montage des ressort sur le linteau
    • Système de coulissage LHR (Low Headroom Rear) - montage des ressorts derrière
    • Système de coulissage FTR (Follow The Roof - en suivant le toit) - les rails suivent le toit
    • Systèmle de coulissage HL (High Lift) - les rails vont plus haut que la baie
    • Système de coulissage HL-FTR (High Lift et Follow The Roof) - les rails vont plus haut que la baie et après ils se courbent pour suivre la forme du toit.
    • Système de coulissage FVL (Full Vertical Lift) - les rails vont verticalement, tangentiellement au mur
  • Isolation thermique optimale, réalisée à l'aide de:
    • panneaux sandwich d'une épaisseur de 40 mm
    • joints d'étanchéité latéraux
    • joint double dans la partie inférieure de la porte
  • Confort, sûreté, sécurité
    • Actionnement électrique à distance à l'aide d'une télécommande dont le code ne peut pas être cloné
    • Dispositif contre la rupture des ressorts (parachute)
    • Système anti-pince doigts
    • Système anti-effraction
    • Sysytème "ouvre-porte" (la porte se déplace en sens inverse lorsqu'elle recontre un obstacle)
    • Système de sécurité à photocellules
    • Possibilité d'ouverture d'urgence en cas de panne d'électricité
    • Une garantie de bon fonctionnement pour 15 000 / 25 000 cycles
  • Diversité de couleurs et d'accessoires:
    • Il existe plus de 40 types de panneaux avec des couleurs et des finitions différentes
    • Possibilité de vitrer la porte de garage
    • Possibilité d'intégrer un portillon sans seuil

Présentation du fonctionnement

Porte sectionnelle industrielle -  Système de coullisage Vertical Lift
Porte sectionnelle industrielle - Système de coullisage Standard Lift
Porte sectionnelle industrielle -  Système de coullisage High Lift
Porte sectionnelle industrielle - Système de coullisage High Lift
Porte sectionnelle industrielle -  Système de coullisage Vertical Lift
Porte sectionnelle industrielle - Système de coullisage Vertical Lift

Système de coullisage porte sectionnelle industrielle

Système de coullisage Standard

Système de coullisage Standard

Système de coullisage LHF

Système de coullisage LHF

Système de coullisage LHR

Système de coullisage LHR

Système de coullisage FRT

Système de coullisage FRT

Système de coullisage HL

Système de coullisage HL

Système de coullisage HL-FTR

Système de coullisage HL-FTR

Système de coullisage VL

Système de coullisage VL

Couleurs des panneaux

Panneaux RIB à finition Stucco

Panneaux portes de garage sectionnelles Blanc RAL 9016 - RIB - Stucco

Blanc
RAL 9016

Panneaux portes de garage sectionnelles Brun RAL 8017 - RIB - Stucco

Brun
RAL 8017

Panneaux portes de garage sectionnelles Vert RAL 6005 - RIB - Stucco

Vert
RAL 6005

Panneaux portes de garage sectionnelles Vert RAL 6009 - RIB - Stucco

Vert
RAL 6009

Panneaux portes de garage sectionnelles Albastru RAL 5010 - RIB - Stucco

Bleu
RAL 5010

Panneaux portes de garage sectionnelles Argenté RAL 9006 - RIB - Stucco

Argenté
RAL 9006

Panneaux portes de garage sectionnelles Blanc RAL 9002 - RIB - Stucco

Blanc
RAL 9002

Panneaux portes de garage sectionnelles Gris RAL 7016 - RIB - Stucco

Gris
RAL 7016

Panneaux portes de garage sectionnelles Rouge RAL 3000 - RIB - Stucco

Rouge
RAL 3000

Panneaux RIB à finition Woodgrain

Panneaux portes de garage sectionnelles Brun RAL 8017 - RIB - Woodgrain

Blanc RAL 9016

Panneaux portes de garage sectionnelles - RIB - Woodgrain

Brun RAL 8017

Panneaux portes de garage sectionnelles Noire RAL 9005 - RIB - Woodgrain

Noire RAL 9005

Panneaux portes de garage sectionnelles Chêne doré - RIB - Woodgrain

Chêne doré

Panneaux portes de garage sectionnelles noyer Old oakpe panou RIB - Woodgrain

Noyer
Old oak

Panneaux portes de garage sectionnelles Wenge - RIB - Woodgrain

Wenge
Chêne foncé

Panneaux portes de garage sectionnelles Acajou - RIB - Woodgrain

Acajou

Panneaux portes de garage sectionnelles Vert RAL 6009 - RIB - Woodgrain

Vert RAL 6009

Panneaux MICRORIB et MACRORIB

Panneaux portes sectionnelles industrielles Blanc RAL 9016 MICRORIB

Blanc RAL 9016

Panneaux portes sectionnelles industrielles Argenté
 RAL 9006  MACRORIB - Woodgrain

Argenté RAL 9006
woodgrain

Portes de garage brochure

Portes de garage brochure


Portes industrielles brochure

Portes de garage brochure


Calculateur de prix

Calculateur de prix


Présentation

Présentation portes de garage

Contact

Portes de garage MCA - Belgique

Sous le nom MCA se cachent 29 années d'expérience, 130 personnes qui s'occupent de la production et de la distribution ainsi qu'un constant désir de perfectionnement.

Contact

  • Addresse: Rue des ateliers 15, 6060 Gilly

  • Phone: 0032491755234

  • Email: be@mcagrup.com

  • Volets roulants: www.volets-roulants-mca.eu/

Porte de garage MCA

© Copyright 2026. All Rights Reserved.